

























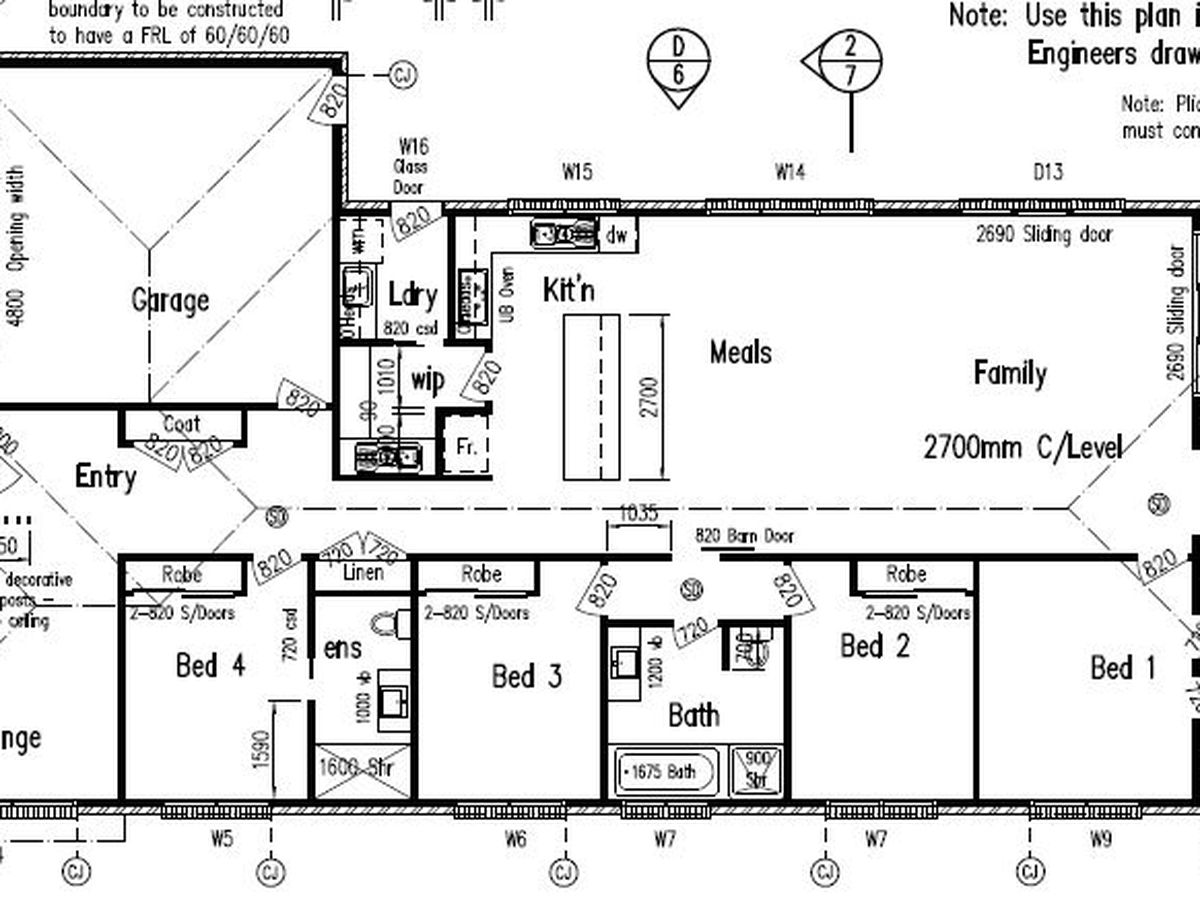
This house is beautiful, bright, and comfortable and has everything you need in a family home. It has four bedrooms with BIRs, the master bedroom including an ensuite and WIR, and the second bedroom with BIRs and an Ensuite.
A large and open plan living/dining/kitchen area, as well as a central bathroom. Truganina has the highest levels of practicality, high-end quality, functionality, attraction, and attention to detail you'll ever see. Close to West Grammar School and Al Taqwa College and Mosque.
This property features:
- Master bedroom with Walk-in-robe and Ensuite
- Second bedroom with BIR and Ensuite
- 2 other great-sized bedrooms with BIR
- Study
- Double vanity
- Open plan lounge area off the kitchen
- Downlights
- Dishwasher
- Double garage
- Concrete around the house
- Landscaped low-maintenance yard
- 2 separate living areas (Family/Lounge)
- Size of the land/house (448sqm/29 square house)
- 2740mm ceiling height
- Reverse Cycle Heating/Cooling System with 6 zones
- Caesarstone benchtops in Kitchen/Bathroom
- Tiles Throughout the house
This sought-after lifestyle location features an exclusive residential enclave, privacy, and prestige. End looking for your dream home right now!!
This quality home will not last long in the thriving and highly sought-after Truganina area, so act quickly to inspect and own this immaculate, desirable home!
Call Lateef on 0433 568 575 to arrange a viewing or to enquire.
*****PHOTO ID REQUIRED AT ALL INSPECTIONS*****